Talairan Notre Dame de Lère
ANTIQUITÉ
MOYEN AGE - EPOQUE MODERNE [1]
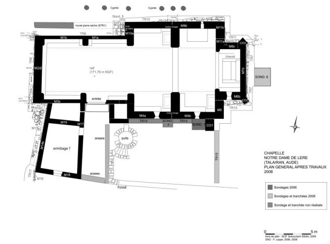
En 2008 la nécessaire vérifi cation des niveaux
archéologiques et de l’état de certaines fondations de
la chapelle Notre-Dame-de-Lère a conduit à projeter
des sondages supplémentaires à des emplacements
différents de ceux réalisés en 2006 (Loppe 2006).
Ces nouveaux travaux ont permis de faire avancer
considérablement la connaissance de ce site rural mal
documenté par les sources, remettant partiellement en
cause certaines interprétations issues des sondages
de 2006, trop peu profonds.
Ainsi, trois phases distinctes ont été mises en
évidence : une phase antique, qui correspond à un
ensemble de murs enterrés sur lesquels l’actuelle
chapelle est bâtie. Le mobilier recueilli atteste d’une
première occupation aux alentours de notre ère et
d’un abandon du site vers les IVe-Ve siècles. Il s’agirait
d’un établissement à vocation agricole s’étendant
très probablement au delà de l’emprise même de
la chapelle (anomalies parcellaires sur le cadastre
napoléonien atteignant une superfi cie d’environ
3750 m²). Une phase médiévale succède à l’occupation
antique par la construction d’un lieu de culte qui
n’avait vraisemblablement au départ ni la forme, ni les
dimensions de l’actuel. Les structures antiques ont
été en partie réutilisées, et un cimetière a été implanté
à l’est et au sud de la chapelle (XIe-XVe siècles).
Enfi n, une phase moderne et contemporaine voit la
réfection de la toiture de l’édifi ce et la construction
d’un ermitage (XVIIe-XIXe siècles ?) contre l’angle sudouest.
On ne sait si des inhumations ont eu lieu durant
cette période mais cela est fort probable, surtout pour
les XVIe-XVIIIe siècles.
Frédéric LOPPE
Amicale laïque de Carcassonne
Plan de la chapelle
[1] Notice extraite du Bilan Scientifique 2008 du Service Régional d’Archéologie de la Direction Régionale des Affaires Culturelles Languedoc-Roussillon
L'Herbiel de Gabriel



