La Digne-d’Aval Eglise Saint-Jacques
MOYEN AGE [1]
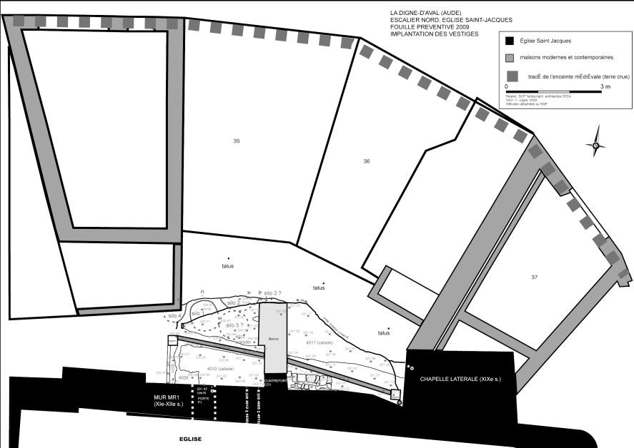
Dans le cadre d’un projet d’aménagement des
abords nord de l’église Saint-Jacques, la création
d’un escalier donnant accès à un espace ouvert dans
l’ancien enclos ecclésial menaçait d’endommager
des silos médiévaux repérés en 1987 par Dominique
Baudreu. Ainsi, une fouille manuelle a été entreprise :
elle a permis de dégager une calade sur une longueur
d’environ 6 m et une largeur comprise entre 1,10 m
et 2,40 m. Par ailleurs, le sondage proprement dit
(2,4 m² environ) a permis de fouiller intégralement les
vestiges de deux silos médiévaux.
Plusieurs phases successives se dégagent :
parallèlement à la création de l’église (milieu XIe
siècle ?), un enclos ecclésial est délimité : il accueille
des silos excavés dans le substrat (au moins cinq ont
été repérés) dont la durée d’utilisation semble avoir
été assez courte, si l’on en croit le matériel issu de leur
comblement (jusqu’au milieu du XIIe siècle ?). Aucun
niveau de sol périphérique strictement contemporain
n’a été mis en évidence. La question de savoir si ces
silos étaient protégés ou non (se situaient-ils dans un
habitat ?) reste également posée.
Après cet abandon, un sol est mis en place directement
sur le substrat en condamnant l’embouchure des silos.
Il pourrait correspondre à une volonté de réorganiser
l’espace. Le mobilier recueilli sur ce niveau permet
d’envisager une occupation assez large s’étendant
entre le milieu du XIIe et le XIVe siècle. Ce sol est
ensuite recouvert d’une recharge, puis d’un nouveau
sol, puis d’une autre recharge, et enfin d’un dernier sol
datable des XIVe-XVIIe siècles. Enfin, dans une ultime
phase (XVIIe-XIXe siècles), un remblai recouvre ces
niveaux afin d’accueillir la calade actuellement visible.
L’agrandissement de l’église vers l’est au milieu du
XIXe siècle condamne cette circulation qui faisait
auparavant le tour du lieu de culte. L’endroit sert alors
de dépotoir (déchets, gravats) jusqu’au début du XXe
siècle.
Frédéric LOPPE
Amicale laïque de Carcassonne
Plan des vestiges au nord de l’église Saint-Jacques
[1] Notice extraite du Bilan Scientifique 2009 du Service Régional d’Archéologie de la Direction Régionale des Affaires Culturelles Languedoc-Roussillon
L'Herbiel de Gabriel



